物件詳細
新築一戸建て
- 所在地:
- 千葉県市川市伊勢宿11-22 周辺マップ>>
- 交通 :
-
東京メトロ東西線「行徳」駅 徒歩10分
東京メトロ東西線「妙典」駅 徒歩13分
- 価格:
- 7,390万円
- 市川市伊勢宿 新築分譲住宅 仲介手数料無料法定上限額の半額
物件概要
| 物件番号 | 99999sn868 | 現況 | 完成済 |
|---|---|---|---|
| 物件名称 | 市川市伊勢宿 新築分譲住宅 仲介手数料無料法定上限額の半額 | 建ぺい率 | 60% |
| 交通 |
東京メトロ東西線「行徳」駅 徒歩10分
東京メトロ東西線「妙典」駅 徒歩13分 |
容積率 | 200% |
| 所在地 | 千葉県市川市伊勢宿 | 土地権利 | 所有権 |
| 価格 | 7,390万円 | 都市計画 | 市街化区域 |
| 土地面積 | 142.06m2 | 引渡日 | 202510 |
| 建物面積 | 104.22m2 | 接道状況 | 北東6m公道 |
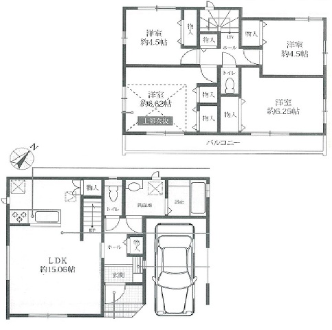
| 間取 | 4LDK(LDK15、洋室4.5、4.5、6.2、6.6) | 駐車場 | カースペース1台 |
| 販売区画数 | 3 | 設備 | 東京電力・都市ガス・公営水道・浄化槽 食洗器 下駄箱鏡面付き 全居室収納 |
| 構造・規模 | 木造 | 取引態様 | 媒介 |
| 築年数 | 2025年9月 | 情報更新日 | 2025/10/20 |
| 建築確認番号 | 第HPA-25-04824-1号 | 用途地域 | 第一種中高層住居専用地域 |
| 地目 | 宅地 | 備考 |













